تاندیش
یکی از تجهیزات اصلی در فرایند ریخته گری مداوم فولاد تاندیش می باشد که به عنوان واسط بین پاتیل و قالب های ریخته ...
فولاد سازی و خط نورد
ترانسفرکار
یکی از تجهیزات کلیدی در سیستم های حمل مواد و محصولات سنگین درصنایع فولاد و معدنی است که جهت جابه جایی بار بین ...
دامی بار(Dummy Bar)
دامی بار ، تجهیزی حیاتی در فرایند ریخته گری مداوم فولاد است که در ابتدای عملیات ریخته گری جهت شروع کشش ...
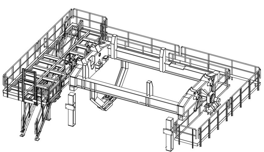
ماشین لوپر خط نورد
ماشین لوپر خط نورد درخطوط نورد گرم استفاده می شود که وظیفه آن کنترل کشش و یکنواخت سازی جریان حرکت ...
کولینگ بد (Cooling Bed)
کولینگ بد یکی از تجهیزات اصلی در خطوط نورد فولاد است که وظیفه خنک کاری یکنواخت و کنترل شده مقاطع ...
غلطک و رولرهای خط نورد
رولرها ، غلطک های دواری هستند که جهت انتقال خطی محصولات فولادی نظیر بیلت ، اسلب و مقاطع نوردشده ...
استرند گاید (Strand Guide)
مجموعه از رولرها و سازه های هدایت کننده است که وظیفه هدایت و پشتیبانی محصول ریخته گری شده (استرند) از ...
تاندیش تیلتینگ (Tundish Tilting)
این تجهیز سیستمی مکانیکی – هیدرولیکی است که شیب دهی و تخلیه کنترل شده تاندیش در پایان عملیات ریخته گری ...
تاندیش کار (Tundish car)
تاندیش کار تجهیزی مکانیزه در خطوط ریخته گری مداوم فولاد (CCM) که وظیفه حمل ، استقرار دقیق و جابه جایی ...
اسکرپ باکت / سبد قراضه(Scrap bucket)
اسکرپ باکت تجهیزی مقاوم و سنگین در واحد های فولاد سازی است که جهت جمع آوری ، حمل ...
پلت فرم های سگمنت ها (Segment Platform)
پلتفرم های سگمنت ها ، سازه های فلزی دسترسی هستند که جهت ایجاد امکان بازدید ، سرویس ...










